Bendisgrup
Focar semineu CORNER 150/47 R Premium, Black Lazaru
Focar semineu CORNER 150/47 R Premium, Black Lazaru
- Caracteristici:
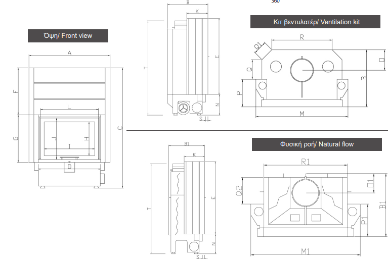
- Dimensiuni sticla: 1260 x 415 mm
- Clasa energetica: Α+
- Putere termica nominala: 14,9 kW
- Performanta la ardere: 8 - 16 kW
- Randament: 77,2 %
- Dimensiuni exterioare: 1490 x 570 x 1490 mm
- Greutate: 343 kg
- Iesire de fum: Ø250 mm
- Diametru admisie aer: Ø150
- Garantie: 5 ani
- Produs in Grecia
- Combustibil: Lemne
- Consum: 5,1 kg/h
- sticlă cu două fețe cu versiune dreapta și stânga
- sticlă mare de colț care vă permite să vă bucurați de foc într-un mod unic
- curățați liniile minimale conform cerințelor designului modern
- cameră de ardere căptușită cu 1800° C - Samota Thermomax de culoare gri închis
- reglarea aerului primar și secundar admis, cu o singură manetă
- sistem special de întârziere evacuare
- mecanism de ridicare silențios al ușii din ghidaje din oțel inoxidabil pentru derulare lină și silentioasă, în timp ce la coborâre se apasă spre interior pentru închidere etanșă.
- alimentare cu aer în trei locuri
- două opțiuni de transfer aer cald cu 1. Kit de ventilație (contra-cost), 2. Natural debit (inclus)
- admisie centrală a aerului
- priza centrala de aer
- respectă următoarele standarde: EN 13 229, 2015/1186, EcoDesign 2022
- reglare mecanică de evacuare
- acces la toate piesele mecanice și electrice din interiorul focarului
Preț obișnuit
22.990,00 RON
Preț obișnuit
Preț redus
22.990,00 RON
Preț unitar
pe
Taxe incluse.
Taxele de expediere sunt calculate la finalizarea comenzii.
Nu am putut încărca disponibilitatea pentru ridicare



