Bendisgrup
Focar semineu FLAT 150/47 Premium Line, Black Lazaru
Focar semineu FLAT 150/47 Premium Line, Black Lazaru
- Caracteristici:
- Dimensiuni sticla: 1300 x 415 mm
- Clasa energetica: Α+
- Putere termica nominala: 13 kW
- Performanta la ardere: 9 - 15,8 kW
- Randament: 76%
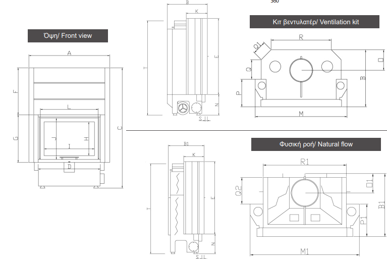
- Dimensiuni exterioare: 1630 x 570 x 1490 mm
- Greutate: 348 kg
- Iesire de fum: Ø250 mm
- Diametru admisie aer: Ø150
- Garantie: 5 ani
- Produs in Grecia
- Combustibil: Lemne
- Consum: 3,8 kg/h
- insert de semineu cu sticla mare
- mecanism de ridicare silențios a ușii din ghidaje din oțel inoxidabil pentru defilare lină și silentioasă în timp ce la coborâre se apasă spre interior pentru închiderea etanșă
- rularea stabilă a ușii pe ghidaje
- cameră de ardere căptușită cu 1800° C - Samota Thermomax de culoare gri închis
- reglarea aerului primar și secundar admis, cu o singură manetă
- sistem special de întârziere evacuare
- alimentare cu aer în trei locuri
- două opțiuni de transfer aer cald , contra-cost, cu 1. Kit de ventilație, 2. Natural debit
- admisie centrală a aerului
- respectă următoarele standarde: EN 13 229, 2015/1186, EcoDesign 2022
- reglare mecanică de evacuare
- acces la toate piesele mecanice și electrice din interiorul focarului
Preț obișnuit
20.190,00 RON
Preț obișnuit
Preț redus
20.190,00 RON
Preț unitar
pe
Taxe incluse.
Taxele de expediere sunt calculate la finalizarea comenzii.
Nu am putut încărca disponibilitatea pentru ridicare



