Bendisgrup
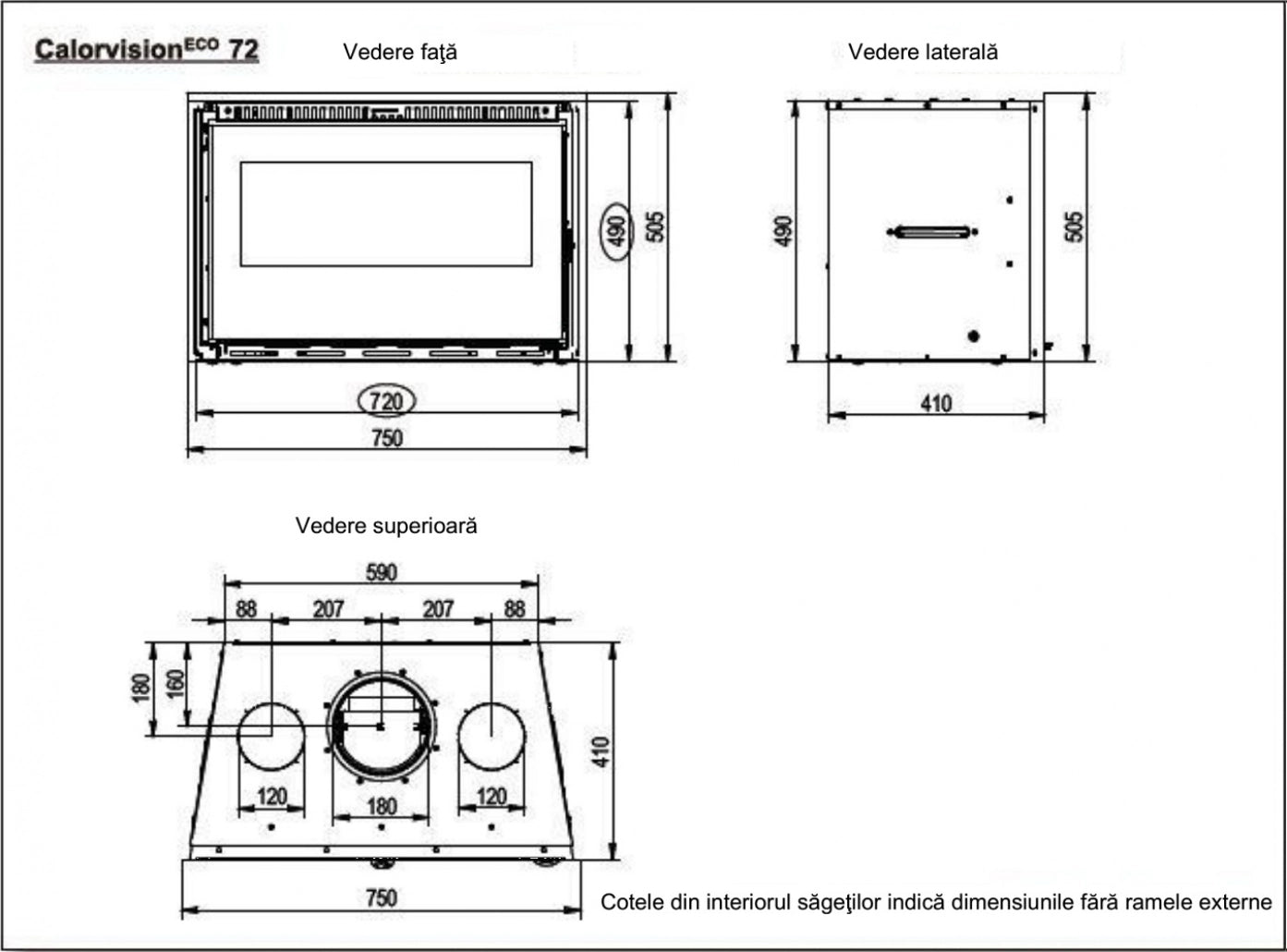
Focar otel samotat Calorvision 72 / 9kw - cu ventilator
Focar otel samotat Calorvision 72 / 9kw - cu ventilator
Camera de ardere cu ventilator pentru distributia aerului cald si modul electronic de control. Focarul este dotat cu clapeta automata la deschiderea usii si interior captusit cu samota.
- Captusit la interior cu samota, cu densitate mare, si rezistenta termica de pana la 1000grC. Rezistenta mecanica mare, datorita procesului de uscare urmat de cel de ardere.
- sticla ceramica speciala care rezista fara probleme la temperaturi foarte ridicate
- sticla decorativa grafitata (contur negru) care ofera un aspect modern si elegant
- Ardere pe vatra pentru reziduri de cenusa cat mai scazute.
- Deflector pentru extinderea traseului fumului si imbunatatirea schimbului termic
* Consum lemne: 2.7kg/h
* Necesar tiraj cos fum: 10-12Pa
* Consum energie ventilator: 118W
ECHIPARE STANDARD
CALORVISION este livrat cu urmatoarele accesorii incluse in pret:
• Unitate de control electronica
• Sonda de masurare a temperaturii
• Ventilator electric tangential 340 m3 / h
• Microcomutator oprire ventilator electric
• Aparatoare pentru busteni, din otel
• 2 racorduri de evacuare a aerului cald Ø 120 mm neinstalate
• Camera de ardere captusita cu Ecoker®
• Senzor pentru oprirea automata a ventilatorului cand se deschide usa pentru a nu trage fum pe distributia de aer.
Nu am putut încărca disponibilitatea pentru ridicare



