Bendisgrup
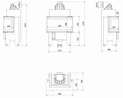
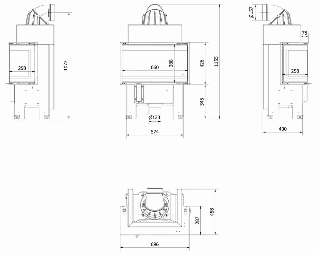
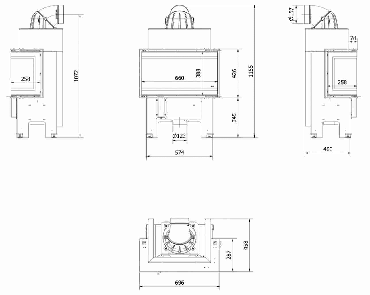
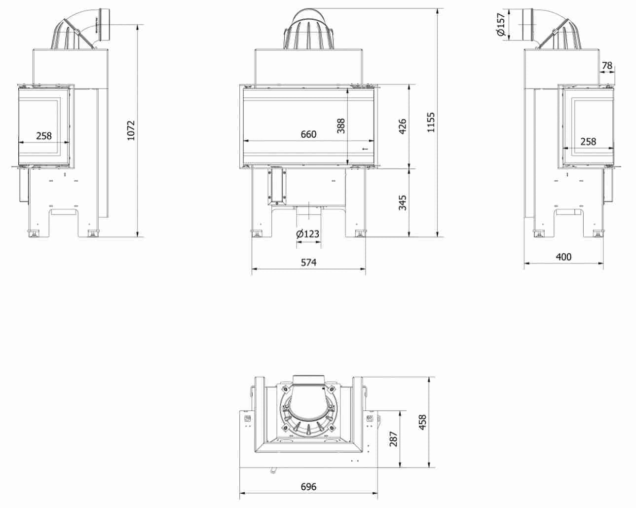
NBC 70 trei laturi samota alba - deschidere standard (orizontala)
NBC 70 trei laturi samota alba - deschidere standard (orizontala)
Focar elegant cu trei laturi de sticla si deschidere normala (pe orizontal) pentru seminee pe lemne moderne. Interior captusit cu samota si tehnologie de ardere a lemnului de ultima ora.
Specificații
Focarul este echipat la nivelul conului cu sistem de recuperare a caldurii, compus din tevi orizontale ce preiau din caldura gazelor de evacuare, crescand eficienta acestuia. Focarul nu este pretentios in ceea ce priveste cosul de fum, avand evacuare cu diametru de dimensiune mai mica. Pe conul focarului este amplasata o evacuare reglabile la 360 grade, pentru a facilita racordarea acestuia la cosul de fum.
Detalii privind produsul
Parametri tehnici excelenti, precizie si atentie deosebita la fiecare detaliu
Focarul este dotat cu sticla pe 3 laturi iar sistemul de deschidere a usii se face pe orizontal.
Focar echipat cu schimbator de caldura in conul focarului, compus din tevi orizontale ce maresc considerabil suprafata de recuperare a caldurii si reducand la maxim temperatura gazelor de evacuare, crescand astfel eficienta si puterea dispozitivului.
Deflectorul dublu din conul focarului ajuta la un schimb termic mai bun, prelungind traseul fumului spre evacuare.
Sistem de tripla combustie a focarului: arderea primara directionata pe partea frontala a vatrei; arderea secundara se face tot cu aer proaspat adus prin ajutorul orificiilor amplasate pe peretele din spate al camerei de ardere. In plus a fost aplicat sistemul de curatare a sticlei cu aer proaspat din exterior preincalzit (perdea de aer).
Procesul de ardere se desfasoara pe vatra (fara gratar), rezultand altfel o ardere cat mai completa si reziduuri de cenusa cat mai scazute. Energia termica obtinută din lemn de foc este astfel exploatata la maxim.
Eficienta procesului de ardere, sticla mai curata si mentinerea temperaturii pentru un timp mai indelungat cu ajutorului captuselii de accumote (samota) din interiorul camerei de ardere.
Focarul este echipat cu racord pentru admisie al aerului din exterior de fi 125mm.
Focarul are un aspect modern si elegant datorita sticlei decorative grafitate rezistenta la 800° C care ofera un aspect modern si elegant, largind vizual partea frontala a focarului.
Incinta focarului si usa fabricate din otel refractar de inalta calitate folosit in productie cu o compozitie ridicata de carbon, pentru o rezistenta mare la temperaturi inalte.
Mai usor de montat multumita picioarelor reglabile si a conului de evacuare din fonta reglabil la 360° C.
Reglarea aerului se face cu usurinta doar prin actionarea unui singur regulator care impiedica o utilizare necorespunzatoare.
Etansari perfecte datorita sudurilor solide realizate într-un ecran protector cu gaze nobile.
Garantie 10 ani.
Nu am putut încărca disponibilitatea pentru ridicare






