Â
Se spune că întreaga lume a strălucit când Apollon a văzut lumina zilei. Acum Apollon creează un joc fascinant de flăcări între cei patru pereți ai tăi. Iată-l ca versiune pentru stânga, cu caracteristici opționale, cum ar fi funcții inteligente de asistență pentru șemineu sau o șamotă neagră.
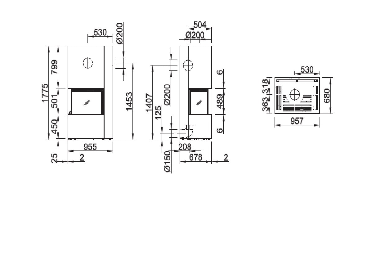
Soba Spartherm cu doua laturi.
Este disponibilă în 12 culori.
Date tehnice
| Combustibil | Lemn |
| Formă de sticlă | În formă de L |
| Funcția ușii | Glisare în sus, nu închidere automată |
| Opritor de ușă | Jos |
| Clasa de eficiență energetică | O |
| Producție termică | 6,9 până la 12,7 kW |
| Înălțime totală | 1,775 mm |
