Focar semineu vuur drie 80
Focar semineu vuur drie 80
Nu am putut încărca disponibilitatea pentru ridicare
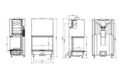
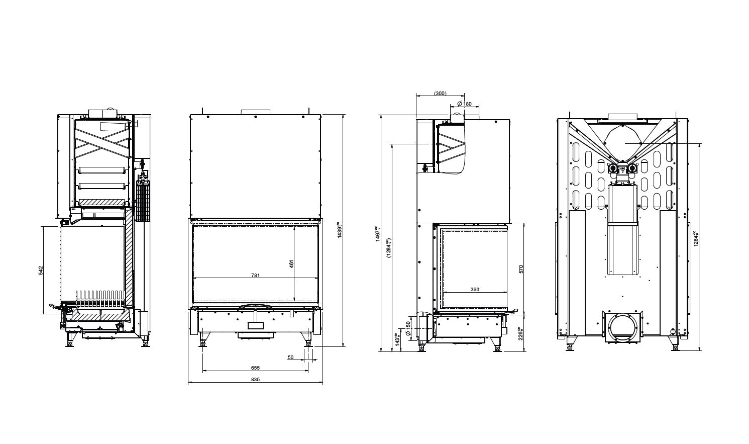
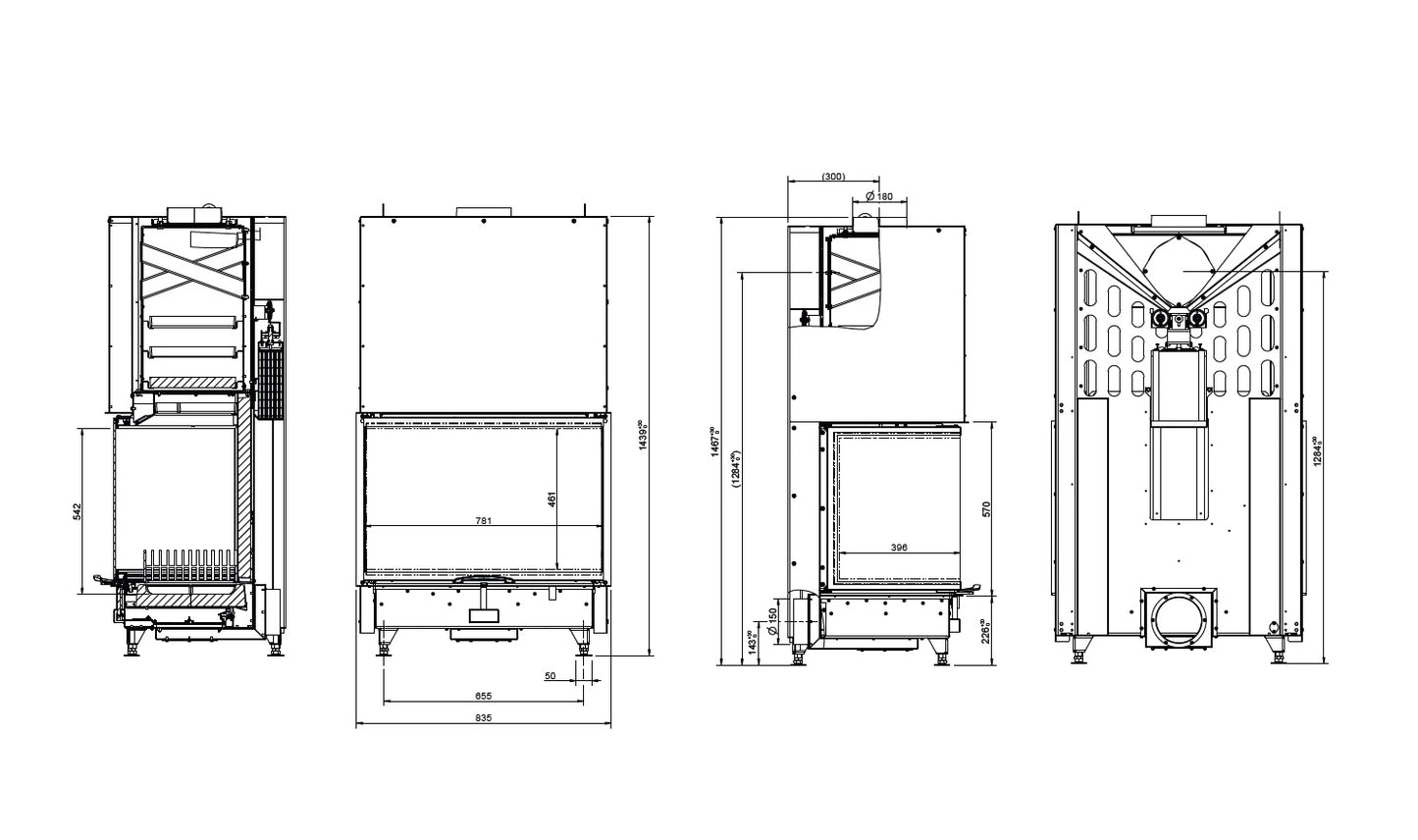
Seria Vuur Drie de la Austroflamm impresionează prin designul său simplu, dar elegant. Focarul negru și profilele deosebit de înguste ale cadrului fac din șemineu o piesă de design modernă.
Înălțime de la [mm] 1467
Înălțime până la [mm] 1517
Lățime (dimensiunea de instalare a corpului) [mm] 835
Adâncime [mm] 592
Înălțimea tocului ușii [mm] 570
Lățimea tocului ușii [mm] 835
Greutate, aparat de bază [kg] 306
Greutate, HMS [kg] -
Înălțimea camerei de ardere [mm] 593
Lățimea camerei de ardere [mm] 400
Adâncimea camerei de ardere [mm] 295
Diametru ieșire conductă de evacuare a gazelor arse [mm] 180
Randament termic nominal [kW] 15,0
Putere termică minimă [kW] -
Putere termică maximă [kW] 15,0
Clasa de eficiență energetică A+
Secțiune transversală a aerului circulant cu suprafață metalică de recuperare a căldurii [cm²] 1300
Secțiune transversală a aerului circulant fără suprafață metalică de recuperare a căldurii [cm²] 700
Necesar de aer de ardere [m³/h] 57,60
Debit minim de combustibil [kg/h] -
Debit maxim de combustibil [kg/h] 3,8
Diametru racord aer exterior [Ø mm] 150
